Blog
Check Out the Modern Farmhouse II - Model Home of the Week
April 18, 2023
MODEL HOME OF THE WEEK
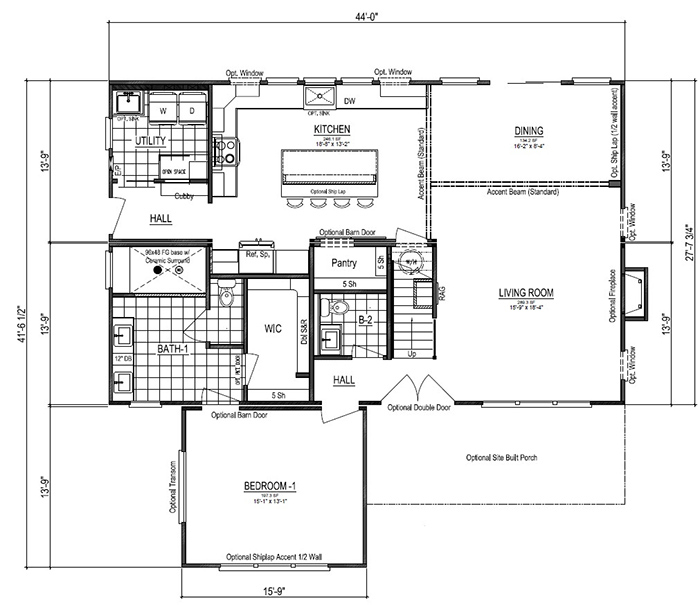
Modern Farmhouse II (Alternate)
Tour at Silverpoint Homes - Beckley, WV
Available to Customize & Build at any Silverpoint Homes Location
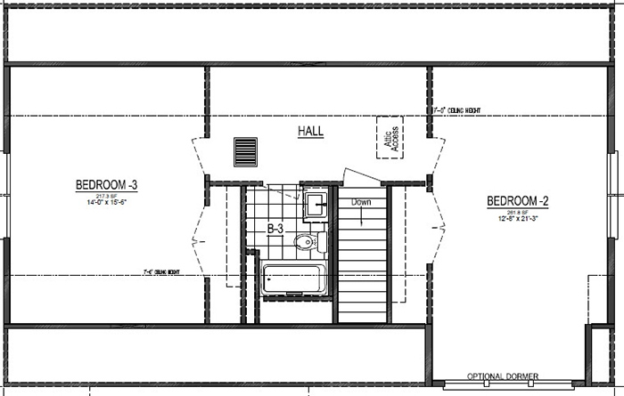
3 Bedrooms | 2.5 Bathrooms | Cape
Finished Area: 2,191 sq. ft.








The Modern Farmhouse II(Alternate) starts in the high-$300's with unfinished 2nd floor
As shown in the mid-$400's with finished 2nd floor