Blog
New Ranch Design For Less Cost Per Square Foot! - Home of the Week
August 22, 2023
BUILD BETTER. BUILD EASIER.
HOME OF THE WEEK
Available to Build at any Silverpoint Homes Location
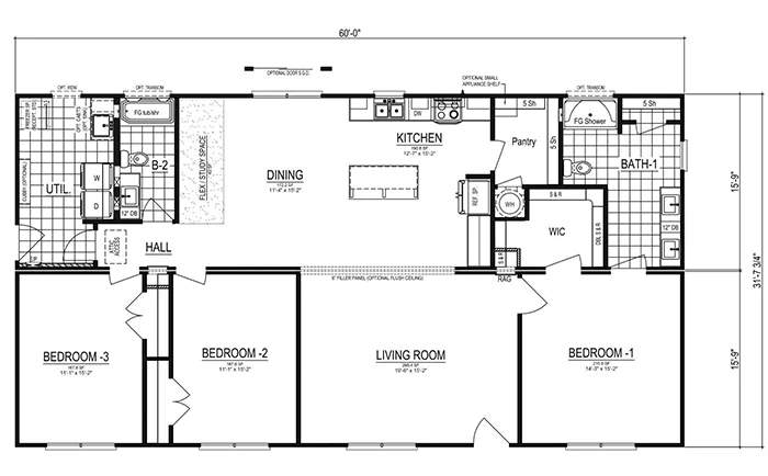
3+ Bedrooms | 2 Bathrooms | Ranch
(Available with 4th Bedroom or Den)
Finished Area: 1,899 sq. ft.






The Horizon II XL - Ranch starts in the high-$200's
(XL plans are wider than standard plans and delivery may not be feasible to all sites.)