BUILD BETTER. BUILD EASIER.
HOME OF THE WEEK
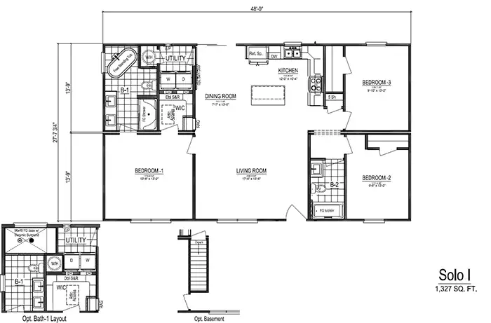
Solo I Ranch
Available to Customize & Build at any Silverpoint Homes Location
3 Bedrooms | 2 Bathrooms | Ranch
Finished Area: 1,327 sq. ft.

Rendering shows additional options and features not included in standard pricing





